Resort de Forêt noire
Revitalization
경기 용인의 고기동은 90년대 분당신도시의 개발을 시작으로 계곡과 저수지, 울창한 산림 등, 도심과 가까운 자연환경을 바탕으로 많은 지역주민에게 휴식과 자연을 제공하고 있는 곳이다. 대한민국에서 "계곡"의 쓰임이란 자연으로의 존재 그 자체의 의미보다 경제활동의 도구로 전락하여 자연속 취락이 자유롭던 시절 인근 음식점들의 전유물로 퇴락하고 있었다. 하지만 지방자치단체와 환경단체의 끊임없는 노력의 결과 많은 계곡들이 본래 제 모습으로 모두에게 공평한 자연으로 거듭나게 되었고, 경기도 역시 고기동 계곡을 주민에게 개방하고 주변지역 활성화와 상생을 위해 끊임없이 노력하여왔다. [1]
이러한 변화 속에서 이미 기능하고 있던 취락 및 유흥의 본 형태를 탈피하거나 변화시키려는 지역상인들의 고민은 시작되었고 이 프로젝트 또한 그러한 변화의 바람에서 출발하였다.
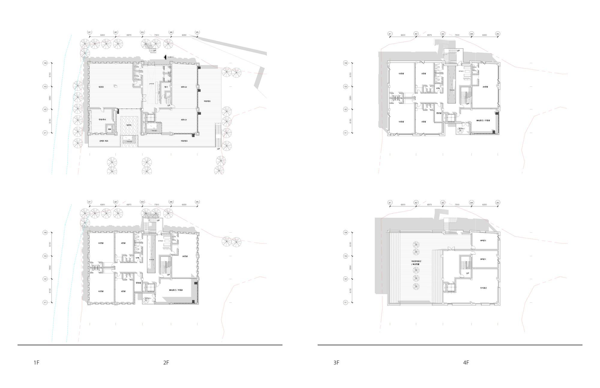
주로 회사, 대학교 동아리, 동호회 등 단체손님의 주말 휴식과 가벼운 행사를 위한 공간으로 이용되고 있던 기존의 건물은 최대한 증축가능한 면적을 확보하여 수련시설과 숙박을 위한 보다 전문적인 숙박시설의 기능을 갖추려 하였으며, 클라이언트는 최대한 원형의 건물을 유지한 채 증축을 통한 비용절감과 면적확보등의 장점을 갖길 원하였다.


Resort in the Forest
공간에 조금 더 쾌적환 화장실을 구비하고, 침대등의 어메니티등을 구비하는등의 오브제를 통한 공간성격의 전환으로는 기존의 취락시설의 기능과는 큰 차별화를 갖지 못할 뿐 아니라, 지역 재생의 장기적인 관점에서도 적합한 방향이 아니란 생각이 들었다. 이에 복합수련시설에 접근하는 방식을 휴양지 성격의 리조트의 개념으로 재 정의 하였으며 건축법규에서 요구하는 기본적인 수련시설의 필수시설을 포함한 복합 휴양시설로의 브랜딩 및 리모델링으로의 전환을 제안하였다.



The Schwarzwald
이 프로젝트의 사례이자 브랜딩의 주된 테마가 된 독일의 슈바르츠발트 지역은 검은숲이란 뜻의 이름이 어울리는, 울창한 산림이 빽빽하다 못해, 태양 빛 조차 제대로 닿기 힘든 어두운 숲이란 특징에서 유래한다. 과거 물자공급 조차 어려웠던 울창한 자연이 온전히 보전되어온 이 지역은 현재는 자연속의 휴식을 원하는 관광객의 발길이 끊이지 않는 곳이다. 지역주민과 지주들이 거주하던 건물은 관광객들을 위한 숙박과 관광시설로 탈바꿈되었고 개발을 통한 자연의 점유보다 원래부터 그 땅을 지켜왔던 하나의 존재로 정체성을 지키고 있는것이 매력적인 곳이기도 하다.
The Black Forest (German: Schwarzwald, pronounced [ˈʃvaʁtsvalt]) is a large, forested mountain range in the state of Baden-Württemberg in southwest Germany. It is bounded by the Rhine valley to the west and south. Its highest peak is the Feldberg with an elevation of 1,493 metres (4,898 ft) above sea level. The region is roughly oblong in shape, with a length of 160 kilometres (100 miles) and breadth of up to 50 km (30 mi).[1]
Historically, the area was known for ore deposits, which led to mining featuring heavily in the local economy. In recent years, tourism has became the primary industry, accounting for around 140,000 jobs. The area features a number of ruined military fortifications dating back to the 17th century.

Materials
증축을 진행하며 가장 고민했던 부분이 재료에 대한 고민일 것이다. 노출된 면과 나무가 어우러질 인테리어와 그 공간을 담아낼 견고한 돌. 가장 원초적인 재료의 조합들은 증축이나 개발의 행위가 단지 자신의 모습을 드러내기위한 과정이 아닌, 담아내는 과정이라 생각하였다.
인테리어 계획 역시 옛 것과 새로운 것의 조화를 고민하며 공간을 비우고 채우는 것이 가구, 소품이 아니라 재료가 할 수 있는 역할이라 하겠다.















Detail information
* Category: Architecture, Branding, Renovation* Status: Built
* Timeline: 2019.01 - 2019.09
* Location: 경기도 용인시 수지구 고기동
* Client: Private
* Size: 1990.25㎡, B1F,4F